| estudio de arquitectura
3L Locales Comerciales

PROYECTO:
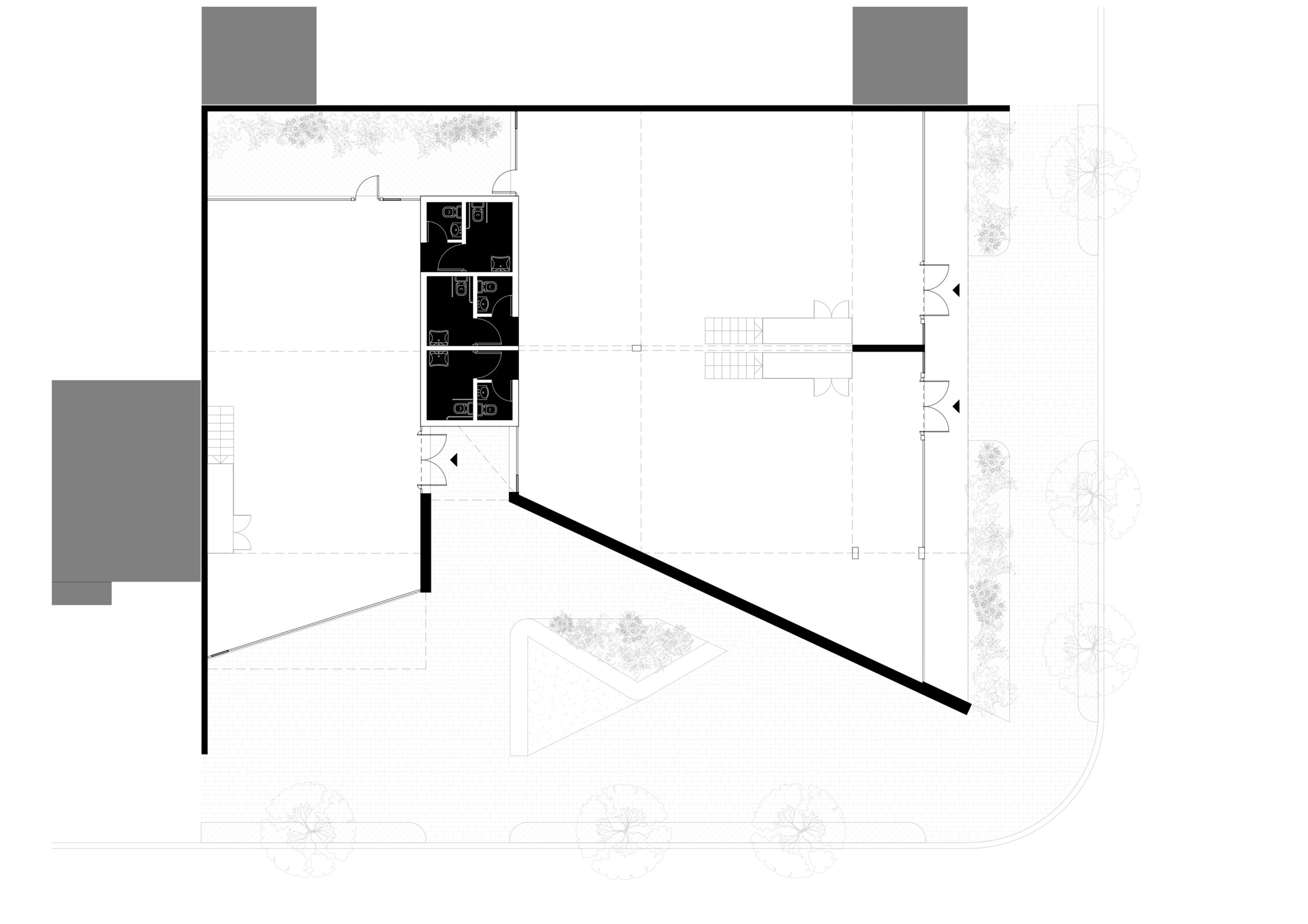
El proyecto 3L se ubica en una de las esquinas más significativas de Arroyito, Córdoba, en el encuentro entre el barrio Arcor —de origen obrero y hoy consolidado como zona
residencial—, un supermercado de gran concurrencia y un club muy importante de la ciudad.
Con locales de más de 150 m² cada uno, el conjunto se concibe como un nuevo polo de atracción comercial, pensado para potenciar la vitalidad del área.
La propuesta arquitectónica toma como referencia el entorno inmediato: el ladrillo visto, característico del barrio Arcor, y la chapa, presente en la tipología industrial del supermercado, se reinterpretan en un lenguaje contemporáneo que otorga identidad, solidez y carácter al conjunto.
Así, 3L no solo responde a su localización estratégica, sino que se presenta como un hito urbano capaz de integrar tradición y modernidad en un punto neurálgico de la ciudad.
AÑO: 2024-2025
UBICACIÓN: Arroyito | Córdoba | Argentina.
ESTADO: En Construcción
M2: 460m2.
TRABAJO EN CONJUNTO CON: NICONE ARQ
ARQUITECTOS: Nicolás Bertone, Leandro Aquiles Cornaglia
VISUALIZACIÓN: Nicolás Bertone.
VISUALIZACIÓN: CREIXA
