| estudio de arquitectura
Casa al Norte

PROYECTO:
La parcela se encuentra en las primeras montañas que forman parte del cordón montañoso “Sierras Chicas de Córdoba”, ofreciendo vistas panorámicas de la ciudad.
El terreno presenta una gran pendiente y una orientación norte, lo cual proporciona condiciones ideales para la distribución de espacios interiores y la creación de terrazas en distintos niveles, favoreciendo así la integración con el entorno natural.
El proyecto inició en el año 2021 como un Loft, pero experimentó una transformación significativa a mitad de camino debido al nacimiento de la primera hija de la pareja.
Se adaptó para convertirse en una casa completa, diseñada para satisfacer las necesidades de una familia en crecimiento.
El diseño de la residencia se basa en la integración de espacios interiores y exteriores, aprovechando al máximo la topografía del terreno. Se distribuye en varios niveles, con diferentes áreas funcionales para la vida cotidiana y el esparcimiento.
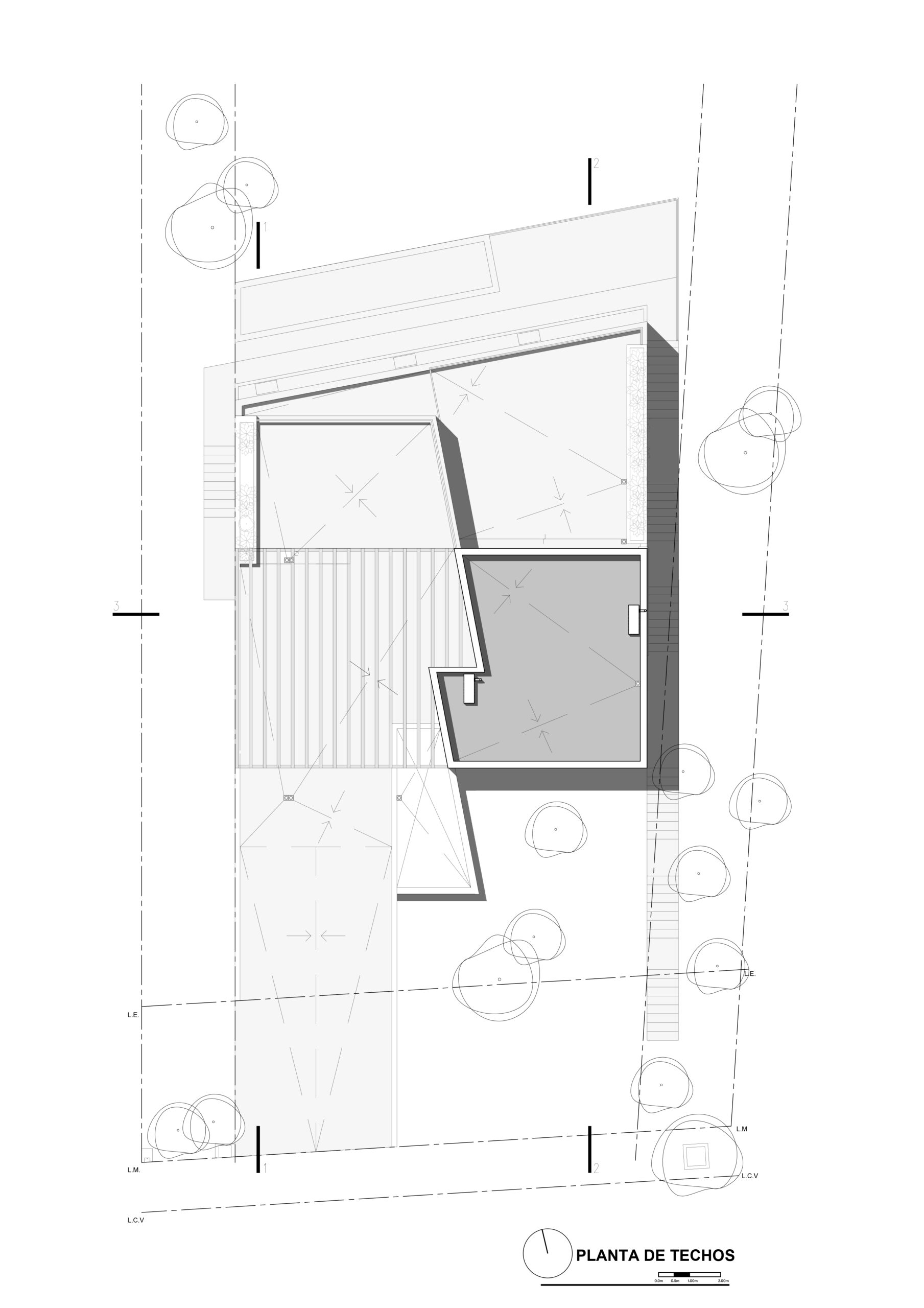
El programa se estructura además con una diagonal producto de las cotas de nivel del terreno original para que para optimizar recursos copia el lote.
A nivel calle se encuentra el acceso principal, el estacionamiento y la primera terraza con vistas panorámicas.
También se ubica un espacio dedicado a atelier, proporcionando un ambiente tranquilo para la creatividad y la desconexión.
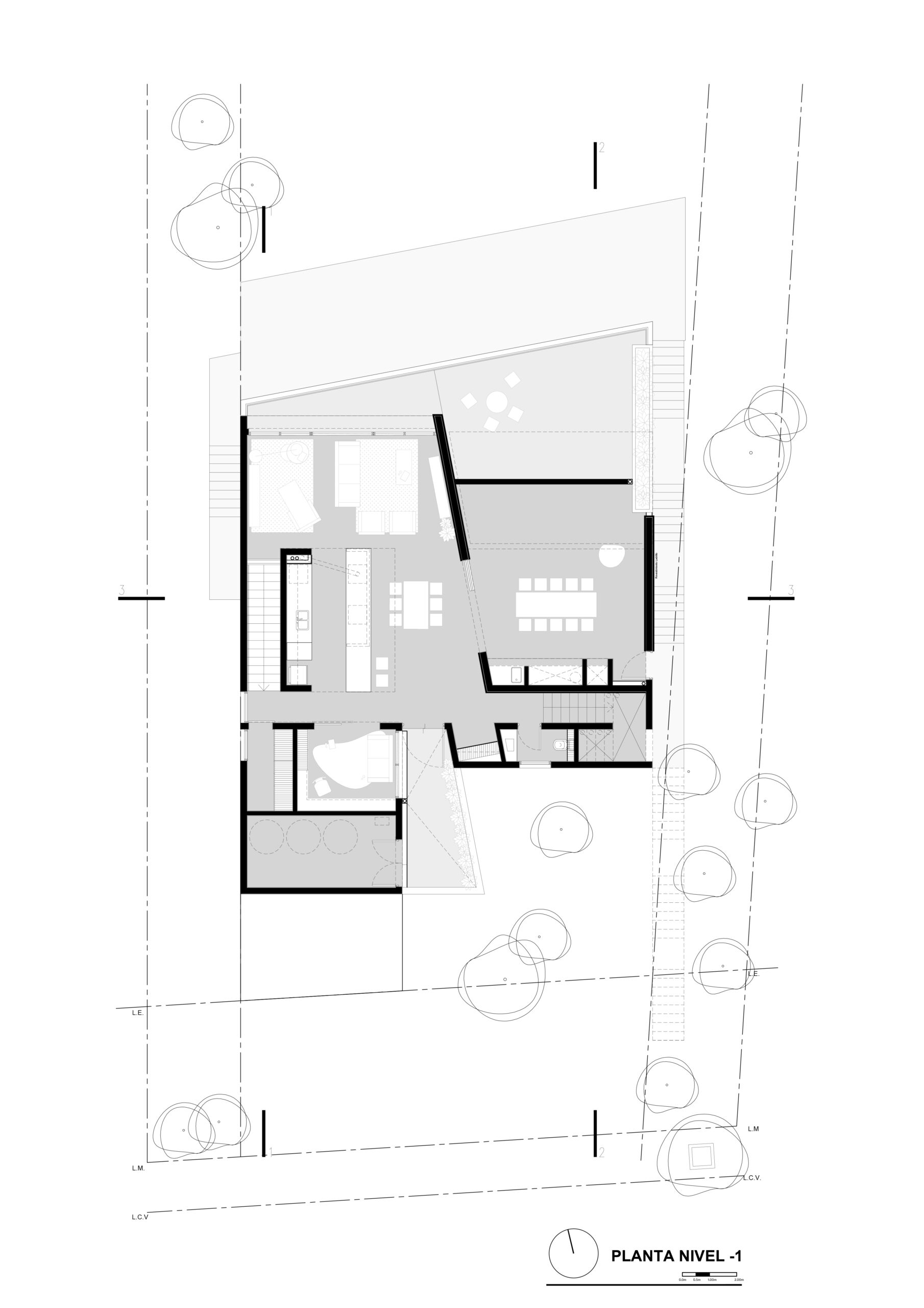
En el nivel -1 se sitúa el área social, que incluye un playroom y una amplia terraza para actividades familiares y de entretenimiento. Esta área se concibe como el corazón de la casa. En la planta -2 se encuentran los dormitorios, un escritorio y el área de lavado y secado de ropa. La distribución de estos espacios en el mismo nivel optimiza los procesos diarios y facilita la organización del hogar.
Aprovechando la inclinación del terreno, se ha diseñado una tercera terraza con áreas verdes y una piscina.
Este espacio ofrece un lugar tranquilo para disfrutar del aire libre y la naturaleza, complementando así la vida familiar.
En cuánto a los materiales, se optó por el uso de ladrillo visto para contener y brindar calidez a la terraza principal. Esta elección, combinada con elementos verdes y un fogonero, crea un ambiente acogedor y propicio para la relajación, resaltando la conexión con el entorno natural.
AÑO: 2023-2024.
UBICACIÓN: Countrie la Deseada- La Calera | Córdoba.
ESTADO: Proyecto.
M2: 285.48 m2.
ARQUITECTOS: Marco Marchese, Leandro Aquiles Cornaglia, Sebastian Cardenas.
COLABORADORES: Alumine Peralta Martínez, Belen Finocchi.
COMUNICACIÓN: Alumine Peralta Martínez, Julian Mejias Moyano, Victoria Giorgis.
