| estudio de arquitectura
Casa NC

PROYECTO:
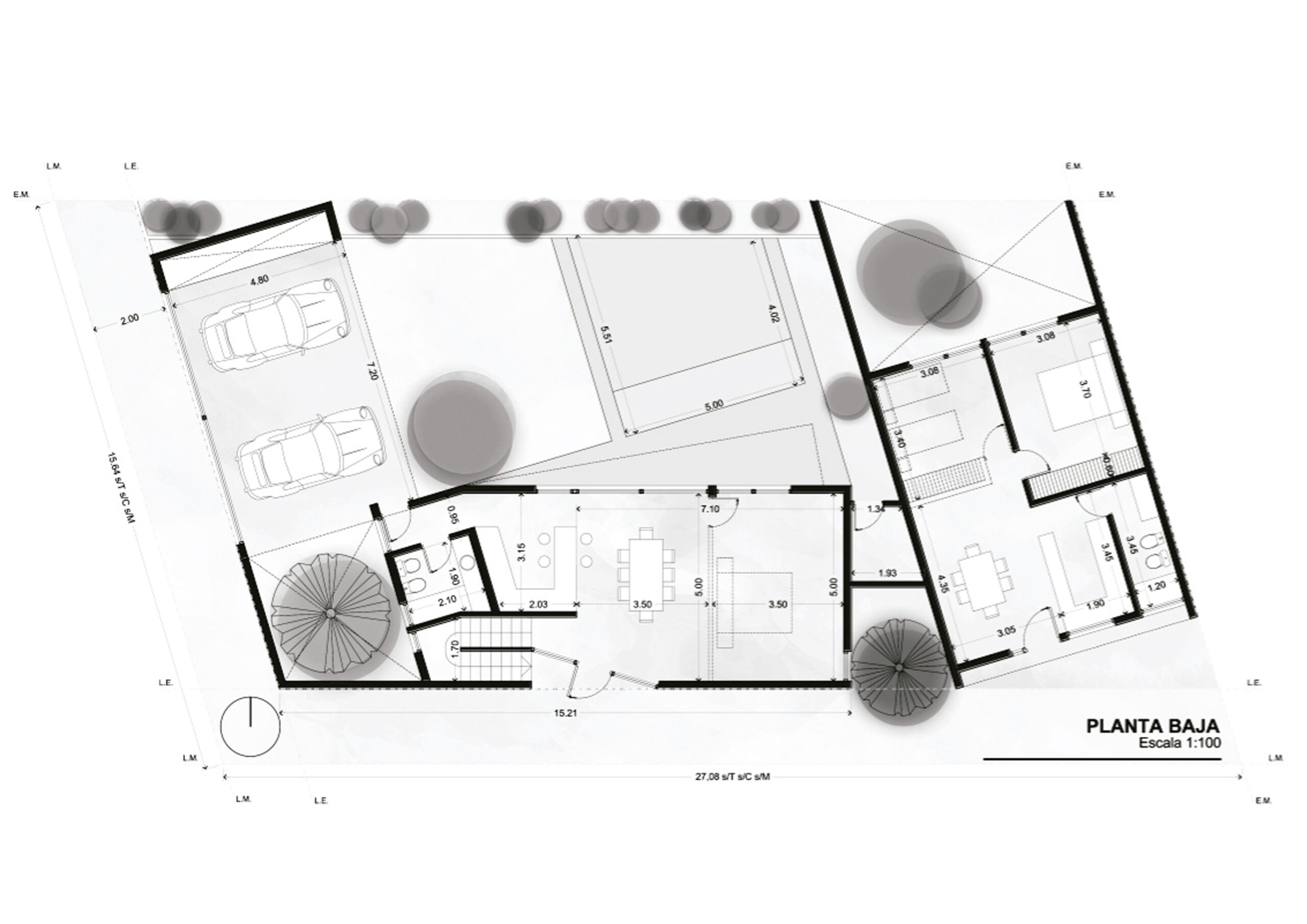
La encomienda inicial requería la creación de una residencia para fines de semana en un lote estratégicamente ubicado entre el majestuoso Lago San Roque y la imponente cadena montañosa de las Sierras Chicas de Córdoba.
Además, el cliente expresó la necesidad de contar con un espacio independiente que funcionara como departamento, con acceso desde la vía pública, destinado a alquileres temporales.
El diseño de la construcción principal se concibió en dos fases, lo que permitiría una planificación y ejecución más eficientes, adaptándose a las necesidades y posibilidades del cliente a lo largo del tiempo.
El proyecto se gestó a partir de la inspiración que brindan dos destacados hitos locales: la histórica Iglesia San Plácido y el imponente cordón montañoso conocido como “Labios del Indio”. Estos elementos emblemáticos no solo sirvieron como referencia visual, sino que también aportaron una conexión simbólica con el entorno, enriqueciendo así el significado y la identidad del proyecto arquitectónico.
La casa se concibió como un refugio que se resguarda de las inclemencias del viento y las condiciones adversas provenientes del sur, adoptando una disposición que limita su exposición a este aspecto meteorológico. En contraste, se diseñó una apertura hacia el norte, donde se encuentra la zona más luminosa y cálida, generando un gesto volumétrico que no solo permite el ingreso de luz natural, sino que también regula el impacto del sol en las áreas vidriadas de la zona pública.
Este cuidadoso planteamiento no solo garantiza un confort térmico óptimo, sino que también crea un diálogo armonioso entre el interior y el exterior, aprovechando al máximo las vistas panorámicas de la naturaleza circundante y fomentando una sensación de conexión con el paisaje.
La casa para fin de semana en este enclave privilegiado de Córdoba se erige como un testimonio de armonía entre la arquitectura y su entorno, fusionando la funcionalidad, la estética y el respeto por el contexto local.
Este proyecto no solo busca satisfacer las necesidades del cliente, sino también enriquecer la experiencia de quienes lo habitan, ofreciendo un refugio sereno y acogedor en medio de la belleza natural de la región.
AÑO: 2020.
UBICACIÓN: Bialet Masse | Córdoba | Argentina.
ESTADO: Proyecto.
M2: 245 m2.
ARQUITECTOS: Marco Marchese, Leandro Aquiles Cornaglia.
