| estudio de arquitectura
Casa Siete Soles II

PROYECTO:
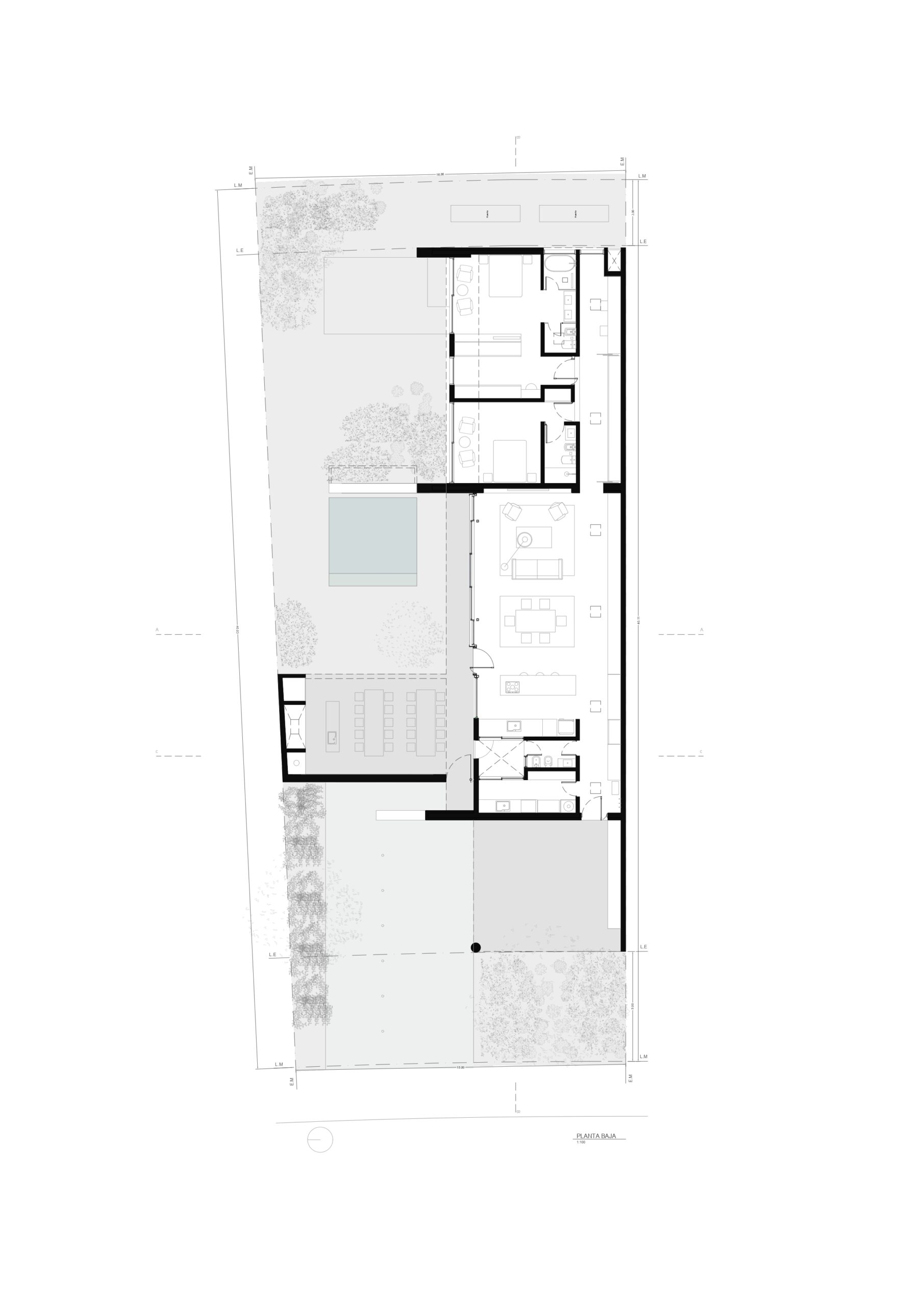
La vivienda se sitúa en la periferia de la ciudad de Córdoba, Argentina, en una parcela de orientación Este-Oeste. El Implantarse en un entorno poco construido, implica proyectar dentro de cierta incertidumbre y tratándose de una vivienda unifamiliar, surge la necesidad de definir límites y relaciones.
Es para esto que cuatro muros de piedra, ordenan la vivienda, organizan su ritmo y garantizan la privacidad de los espacios que lo requieren. Siguiendo una lógica tectónica de placas, una gran losa se posa sobre estos muros, cerrando y conteniendo los ambientes interiores.
El acceso se produce a través del patio, que actúa como un “hall” natural, permitiendo que la transición de lo público a lo privado ocurra de manera gradual y con proporciones adecuadas. El patio, además, se convierte en parte de la vivienda relacionándose de manera particular con cada espacio.
AÑO: 2025-2026
UBICACIÓN: Córdoba | Argentina.
ESTADO: En Desarrollo.
M2: 290 m2.
TRABAJO EN CONJUNTO CON: LHCH y FB ESTUDIO
ARQUITECTOS: Marco Marchese, Franco Brunori, Paula Schroder
VISUALIZACIÓN: Franco Brunori.
