| estudio de arquitectura
Casas Mellizas

PROYECTO:
Ubicadas en la zona sur de la ciudad de Córdoba, estas dos viviendas se destacan frente a un exuberante parque lineal, proporcionando un entorno verde y sereno para sus habitantes. El desafío consistió en diseñar dos unidades inicialmente idénticas, pero con una distinción: una de ellas integraría una cava, transformando así las casas gemelas en mellizas.
Para evitar caer en la multiplicidad de medianeras internas ocasionadas por la diagonalidad del loteo, decidimos crear una fachada dinámica con voladizos, quiebres y elevaciones de techos que generan una arquitectura que se manifiesta de manera diferente según desde donde se la observe, ofreciendo una experiencia visual única.
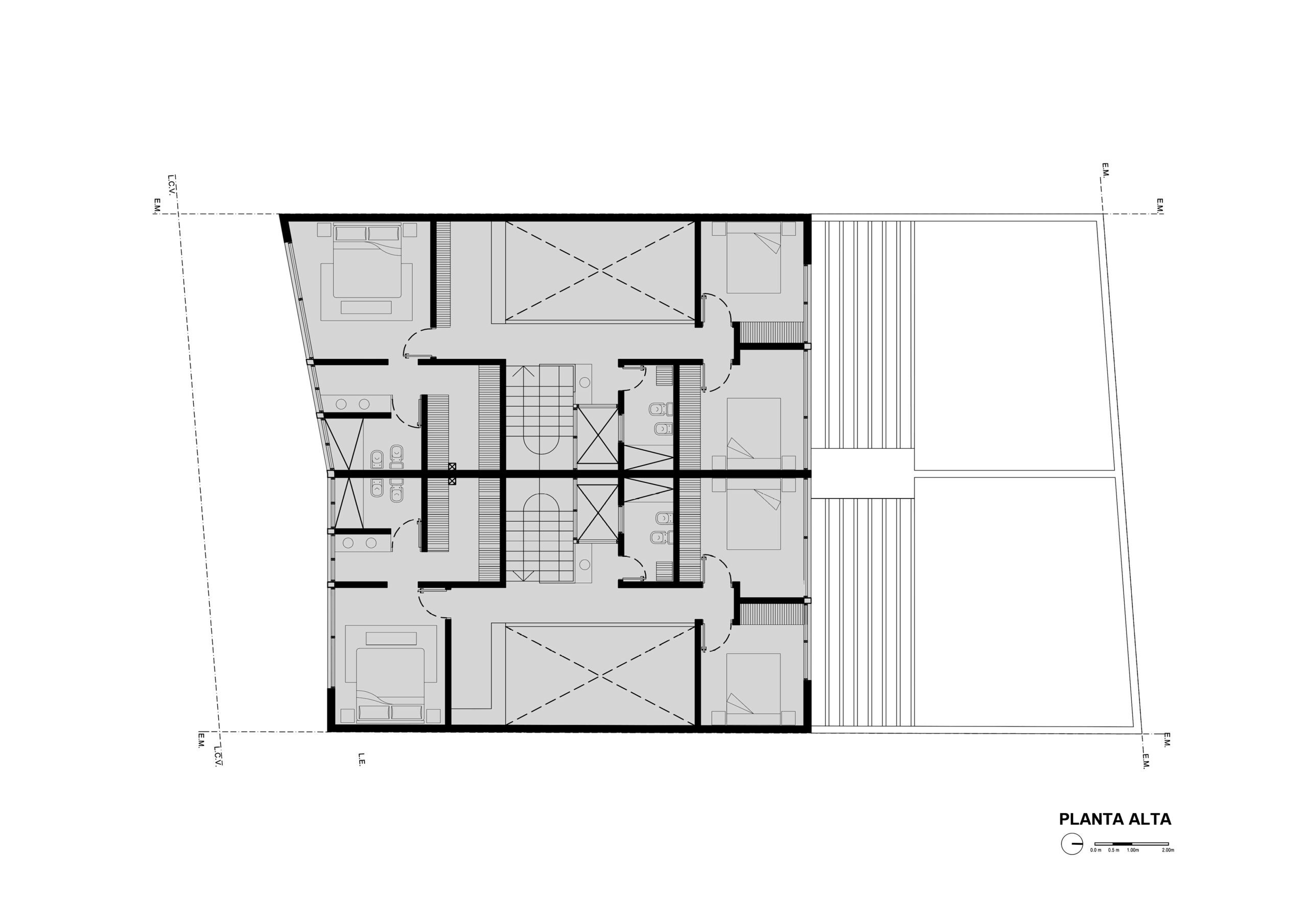
En el interior, la integración espacial alcanza su punto máximo con un amplio espacio de doble altura y una pasarela que conecta sin problemas los espacios privados en la planta alta. Se añadió un patio a media altura y una lucera estratégicamente ubicada para maximizar la entrada de luz natural, realzando la belleza del diseño y generando atmósferas cambiantes a lo largo del día.
La función de distribuyó de manera simple dividiendo la vida social en planta baja y la planta alta se divide en dos bloques, habitaciones secundarias hacia el mismo patio y la habitación principal con visuales más extensas hacia el frente.
En una de las unidades, el núcleo de circulación alberga una cava semienterrada, aprovechando sus beneficios de estabilidad térmica y lumínica. Los asadores, ubicados estratégicamente junto a la cocina, conforman un núcleo culinario que se extiende hacia la galería y el patio a través de una gran abertura. Diseñados en voladizo, se amplían progresivamente desde el área de fuegos hacia la parrilla, maximizando su utilidad y potenciando la experiencia al aire libre.
La construcción se llevó a cabo utilizando sistemas constructivos locales, donde la madera y la piedra desempeñaron roles clave. La piedra, en particular, organizó el espacio al delinear con precisión los accesos a ambas unidades y separar la zona de cochera de la zona de estar, aportando estabilidad visual al conjunto arquitectónico.
AÑO: 2022.
UBICACIÓN: Greenville 2 | Córdoba | Argentina.
ESTADO: Construido.
M2: 375 m2.
ARQUITECTOS: Marco Marchese, Leandro Aquiles Cornaglia.
COLABORADORES: Belen Finocchi, Franco Brunori.
FOTÓGRAFO: Juan Cruza Paredes.
COMUNICACIÓN: Alumine Peralta Martínez, Juliana Benzo, Rocio Falco.
PUBLICADO: 3 de Agosto, 2024 Amazing Architecture.
