| estudio de arquitectura
Hostería Antofagasta

PROYECTO:
El proyecto aborda la reforma y ampliación de una antigua hostería y ex museo mineral en la zona de Antofagasta de la Sierra, Catamarca. Implantándose en un contexto desértico de volcanes y condiciones climáticas extremas a 3.400 metros sobre el nivel del mar.
El edificio original, construido con muros portantes de adobe y fundaciones de piedra volcánica debido a la salinidad del suelo, requirió una intervención precisa que preservara su estabilidad estructural y su lógica constructiva original.
La estrategia proyectual se basa en una masa construida ahuecada de manera controlada, incorporando aperturas mínimas y precisas para garantizar iluminación natural, ventilación y visuales, manteniendo al mismo tiempo un óptimo rendimiento térmico. Para permitir estas operaciones sin comprometer la estabilidad de la construcción original, se desarrolla un sistema de bocas estructurales de hormigón armado, que consolidan los muros de adobe y ordenan los nuevos vacíos.
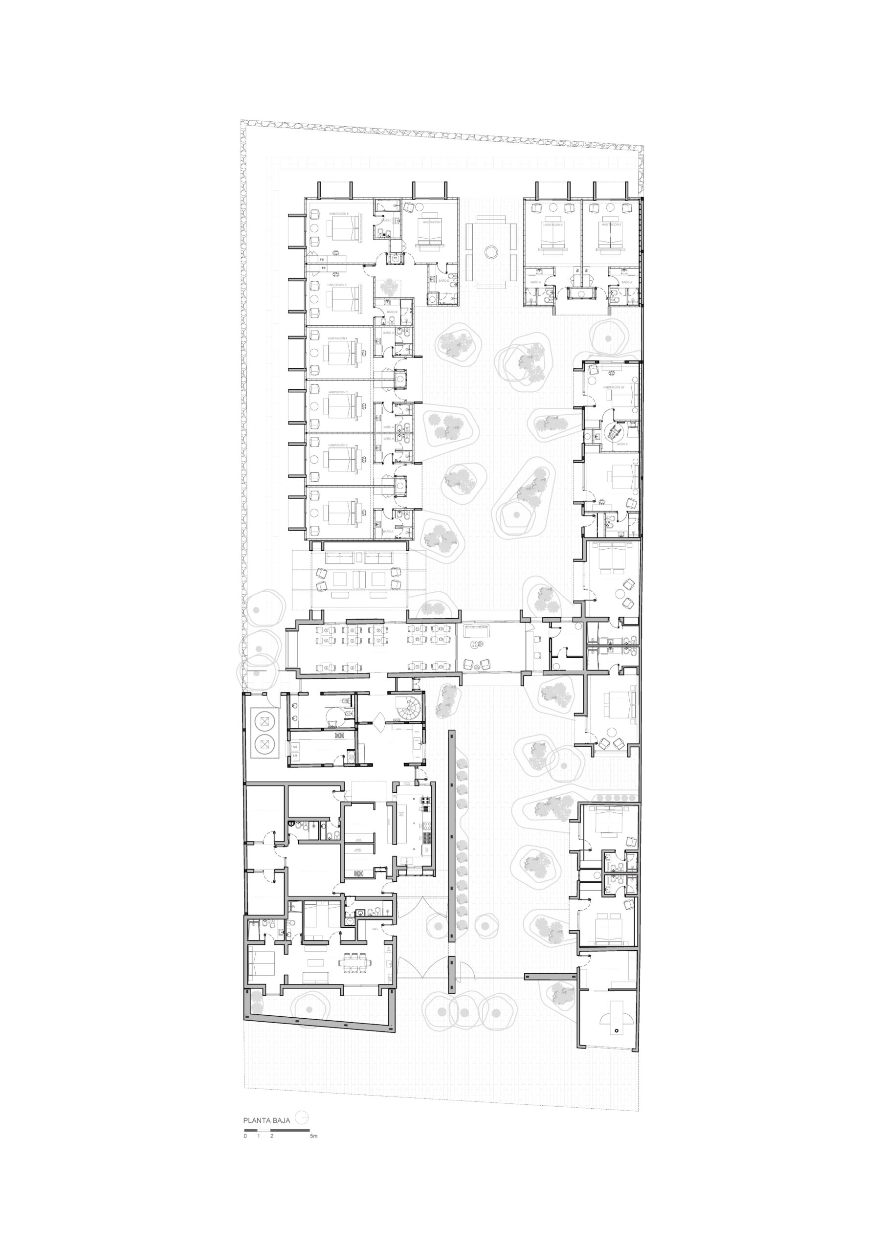
En cuanto a lo tipológico se configuran dos patios interiores tipo claustro, concebidos como oasis protegidos, que organizan el conjunto, mejoran el comportamiento ambiental y estructuran las circulaciones.
La implantación se ordena mediante un eje longitudinal que articula acceso, espacios públicos y visuales hacia el paisaje. Dos muros de piedra separan claramente las áreas públicas, de servicio y la circulación interna del hotel. Se prescinde de una habitación al Oeste que abre el claustro para garantizar una visual continua desde el ingreso hasta el fondo del predio, permitiendo visuales extendidas desde el ingreso.
Las habitaciones se disponen perimetralmente, orientadas hacia los volcanes y formaciones montañosas. Un mueble integrado resuelve el equipamiento interior, permitiendo que las camas se orienten hacia las visuales principales y reduciendo la cantidad de elementos añadidos.
AÑO: 2024 – 2025
UBICACIÓN: Antofagasta de la Sierra | Catamarca | Argentina.
ESTADO: En Construcción.
M2: 2.140m2.
TRABAJO EN CONJUNTO CON: LHCH.
ARQUITECTOS: Marco Marchese, Paula Schroder
VISUALIZACIÓN: Franco Salemi.
