| estudio de arquitectura
Bungalow Playa Hermosa

PROYECTO:
¿Cómo 50m2 en la selva pueden tener 3 funciones distintas en menos de 10 años? Un lote que, en plena selva costaricence, contaba con 3 estructuras abandonadas dispersas. A una de ellas le habían “montado” una casa que sin ventanas era habitada precariamente. Los nuevos dueños adquieren la parcela viendo su potencial natural y deciden como primera etapa de un proyecto de hospitalidad, reformar la casa mencionada anteriormente aprovechando su excelente implantación en el lote con vistas hacia una quebrada.
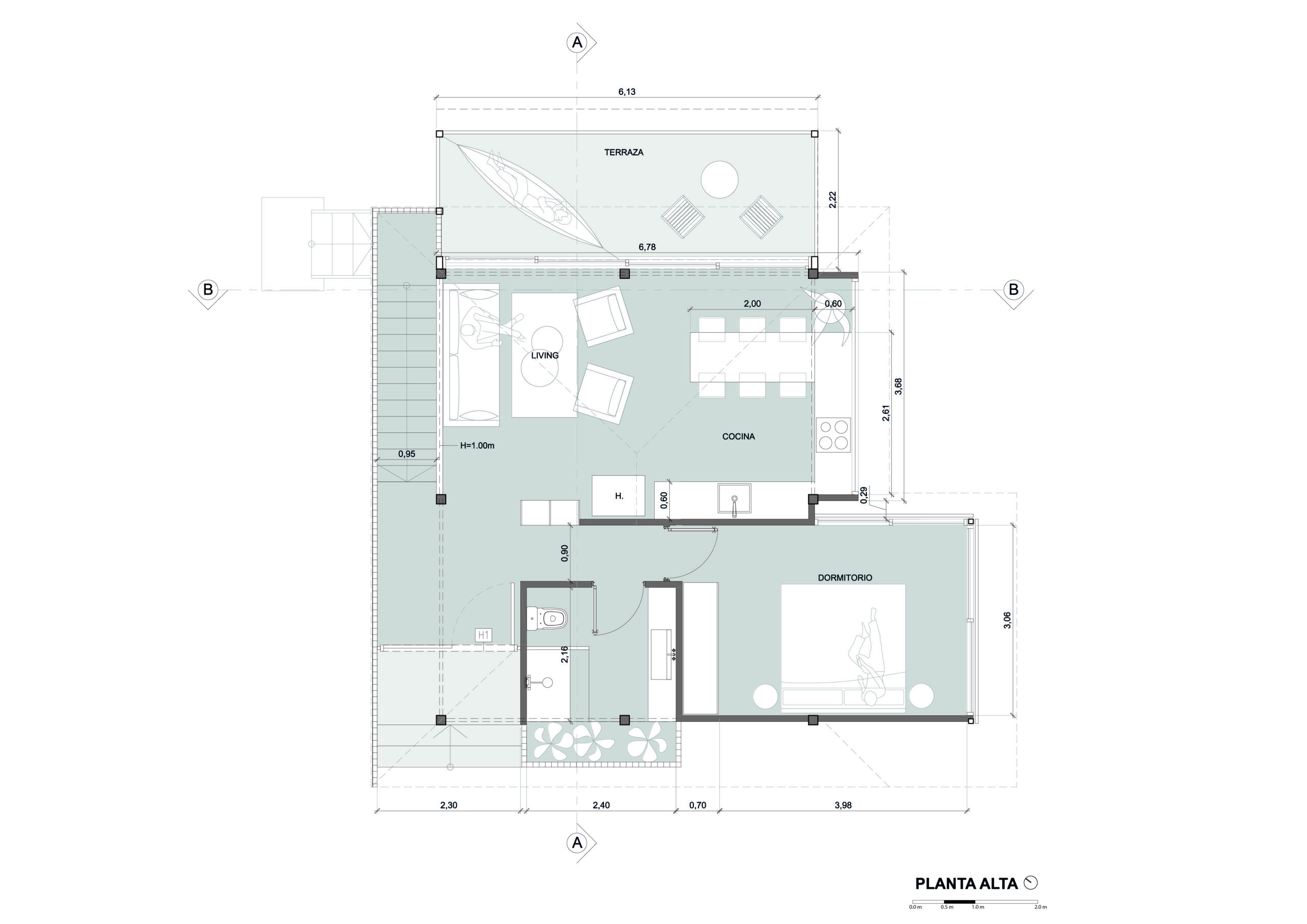
El programa plantea dos habitaciones con baño en suite y un espacio social que cuente con gran apertura para relacionarse así con la selva y expansión semicubierta.
La estrategia de diseño fue liberar la estructura de la casa en su totalidad para volver a la elementalidad, aprovechando así, la flexibilidad que entrega una estructura independiente de madera.
Teniendo en cuenta que nos encontramos en un ambiente tropical es más que necesario tener en cuenta el condicionante de la abundante lluvia por lo que toda ventana debe tener su alero correspondiente, siendo éste mínimamente de 1m (un metro) de largo.
El programa requiere de un espacio social integrado con expansión semicubierta, dos habitaciones y sus respectivos baños en suite, siempre buscando la mayor iluminación, ventilación y apertura/relación con la selva circundante.
Para ésto se comenzó despojando a la construcción actual de todo elemento que sea cerramiento vertical no estructural, manteniendo entre pisos y cubierta que al funcionar perfectamente no era necesario modificar. Al contar con el “lienzo” formado por elementales columnas, todos los locales se orientan con visuales y aperturas hacia el Sur/Este buscando las mejores visuales, ventilaciones e iluminaciones con dos particularidades: en la escalera y en el baño principal se utiliza el ladrillo de vidrio como cerramiento y difusor de visuales para aportar apertura al espacio distorsionando la naturaleza exterior.
Esta estrategia sumada a la utilización de vegetación aportan la privacidad necesaria en un baño que se abre hacia la naturaleza.
AÑO: Proyecto 2023 | Construcción 2024.
UBICACIÓN: Playa Hermosa | Puntarenas | Costa Rica.
ESTADO: En construcción.
M2:120 m2.
ARQUITECTOS: Marco Marchese, Paula Schroder, Pilar Christansen.
COLABORADOR: Mariana Lago.
COMUNICACIÓN: Alumine Peralta Martínez, Julian Mejias Moyano, Victoria Giorgis.
