| estudio de arquitectura
Sextuplex

PROYECTO:
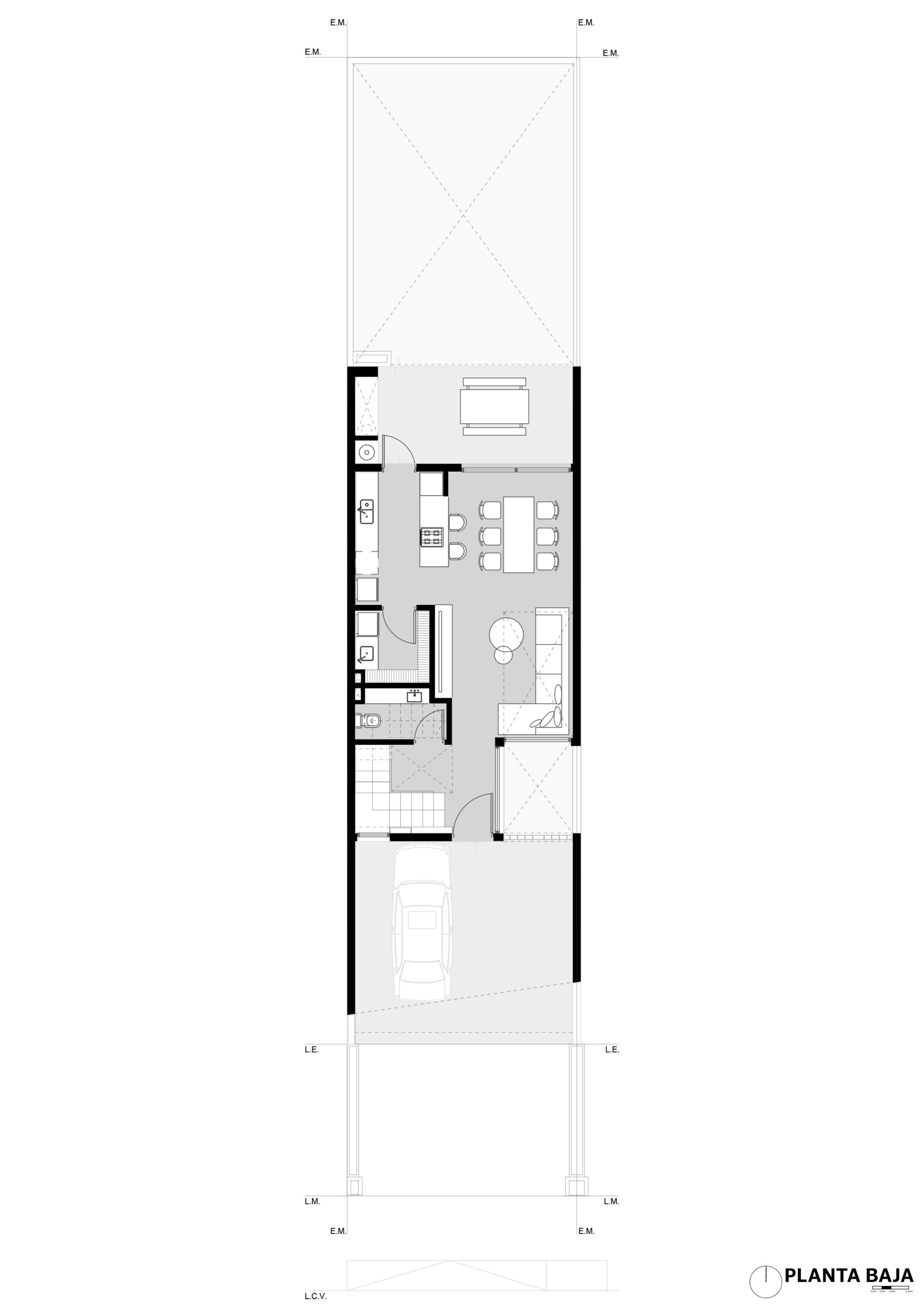
La propuesta consiste en seis unidades continuas que cumplen con un requisito específico del cliente: todas las unidades son idénticas para acelerar el proceso de diseño y construcción, pero sin generar fachada plana continua. Se presenta un diseño que con un quiebre continuo idéntico se da interés visual al conjunto y rompe con la monotonía típica de este tipo de estructuras.
El conjunto se organiza alrededor de un patio central, ubicado en el corazón del volumen. Este patio no solo proporciona un agradable espacio al aire libre, sino que también permite la entrada de luz natural a la mayoría de los espacios interiores. Además, al contar con un cribado hacia el frente sur, se potencia la ventilación cruzada, mejorando así el confort térmico en el interior de las unidades.
Una característica distintiva del diseño es la presencia de una doble altura en cada una de las unidades, que amplía el espacio y crea de amplitud y conexión entre ambas plantas. Esta doble altura además mejora la circulación del aire y la iluminación natural.
En cuanto a la galería, se le ha otorgado una altura y media, lo que permite que el asoleamiento del norte pueda ingresar con mayor profundidad en invierno, aprovechando así la energía solar para calentar los espacios interiores.
Sin embargo, se ha tenido especial cuidado en diseñar elementos de protección solar que eviten el sobrecalentamiento durante el verano, garantizando un ambiente interior confortable en todas las estaciones del año.
En resumen, este proyecto arquitectónico combina eficiencia en el diseño y construcción con consideraciones de confort y calidad espacial. La distribución de las unidades alrededor del patio central, la doble altura en el interior, y el diseño cuidadoso de la galería, son elementos clave que contribuyen a crear un entorno habitable y atractivo para sus usuarios.
AÑO:2020-2021
UBICACIÓN: Docta Urbanización Inteligente | Córdoba | Arg.
ESTADO: En construcción
M2: 1025 m2
